羽釜を使い薪でご飯を炊くと 火力が強いから美味しく炊けるんだよね〜 餅突きの時も 羽釜に蒸し器を載せて餅米を蒸すと早い・・・毎年5〜6蒸篭を蒸すからね〜
今までは LPGコンロで炊いたり蒸したりして居た・・年に数回の事ガス代は知れてる それに普段は片付けておけるから邪魔にも成らない ドッグラン主体の時は 安全を考えると窯を作る場所が無かった・・・
逆に今なら・・場所は幾らでも有る・・ドッグランは常連さんだけに成ったからね〜 (笑)
ピザ窯小屋周囲の回廊板が 腐り朽果てて来て居るから撤去をする予定・・・・場所が空いた・・・(笑)

設置場所

イメージ画
ピザ窯は火を焚き庫内温度350〜400度に上げ 耐火煉瓦に熱を持たせその熱でピザを焼くけど・・竈は直火で炊いたり・煮たり・焼いたりする 言わば火熱や煙を囲う枠の様な物なので コンクリートブロックでも良さそうに思う・・・ダメかな?
ピザ窯を積んだ時は中古の耐火煉瓦・・・一丁100〜150円を200個位使ったかな・・・コンクリートブロックとセメントなら安価に出来るからな〜迷うね・・・(笑)
何で組むかは実際に作る時に決めよう・・・来年の餅突きまでに・・・・・(笑)
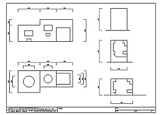
先ずは大きさ 形状を設計 左に蒸し釜用の大きな穴の竈 次にご飯を炊く穴の竈 最後に炭火で焼き物をする掘割竈・・・排気は左から中へそして右の焼き物場へ流れる形状
2枚目の断面図の赤い印が排煙経路 左の一段低い場所が大きな羽釜で蒸す場所 蒸篭を乗せるので低く設計している
左で火を炊き羽釜で蒸し物をすると その排気は中の竈を通り 右の焼き場へ流れる有る意味煙突の役割 排気の熱気が通るので 蒸し器の継ぎ足しお湯を中の竈で沸かせる設計に成っている
材料 コンクリートブロック60丁 ・セメント1〜2袋 ・砂2〜3袋 ・砂利1袋 鉄筋棒2本 ・メッシュ1枚 型枠用合板1枚 その他雑材
予算 (150*20)+(800*2)+(250*4)+(1800*2)+(1500*1)+(1800*1)=18500・・・ 2万円程度
組み立て方法・・
@ 土間に型枠を組み 土間メッシュを敷き ブロック積み用の鉄筋を立て ベースになる平基礎をコンクリートで作る
A 一段目は120cmブロック 二段目以降は100cmを積んで行く
B 各所の天板を 平面でメッシュを入れて平板を作り乗せるか? 乗せる物は羽釜 水を満水に入れると10kgには成るな〜耐えられるかな? ピザ窯の時の様に方枠を組んで鉄筋を入れ生コンを流し込むか 頑丈に成るが手間が3倍掛かる・・・
羽釜を載せる丸穴枠 市販の薪ストーブの組蓋をパーツで取り寄せ
外2枚を羽釜大用 中3枚を羽釜小用に使えば良いかな?
C 竈の薪入れ口をどうするか? 開放のままにするか・・・他の竈には開放が多い様だけど

D 積み上がったコンクリートブロックにモルタルを塗り仕上げる・・・まぁ〜正面の見える所だけで良いよね・・・(笑)
お竈さんでご飯は炊きたいけど・・・自家用分程度の為には準備が大変・・・(笑)
イベントなど大量のご飯を焚く・蒸すには最適・・・なので お竈さん作りは他の作業・・・農業閑散期の作業が概ね終わってから? 稲作の苗作りまで? 稲刈りまで?・・・遅くとも今年の収穫祭までにはやらないとな〜(笑)
−−−−−−−−ご案内・お知らせ−−−−−−−−
閲覧頂き誠に有り難うご座います 色々な事柄を書いています
カテゴリー案内から興味項目を選択頂くと良いかと思います。
腕白ファームNOOMIN奮闘記ブログ

Dog Field Wowpark 腕白ブログ

N.A.W 腕白農業研修会
(Naughty Agriculture Workshop)

ノーティファーム(Naughty farm)ブログ

閲覧頂き誠に有り難うご座います 色々な事柄を書いています
カテゴリー案内から興味項目を選択頂くと良いかと思います。
腕白ファームNOOMIN奮闘記ブログ
Dog Field Wowpark 腕白ブログ

N.A.W 腕白農業研修会
(Naughty Agriculture Workshop)
ノーティファーム(Naughty farm)ブログ




